Follow us on Social Media

Drake Road, Rayners Lane, HA2

3 1 2
Sold STC
£535,000

Drake Road, Rayners Lane, HA2

Price
£535,000
Rooms
3 Bedrooms 1 Bathrooms 2 Receptions
Save
Favourite
Arrange Viewing

Property features

  • Needing Refurbishment Throughout
  • Subject to Planning Permission, possible to Extend the Rear and Loft Space
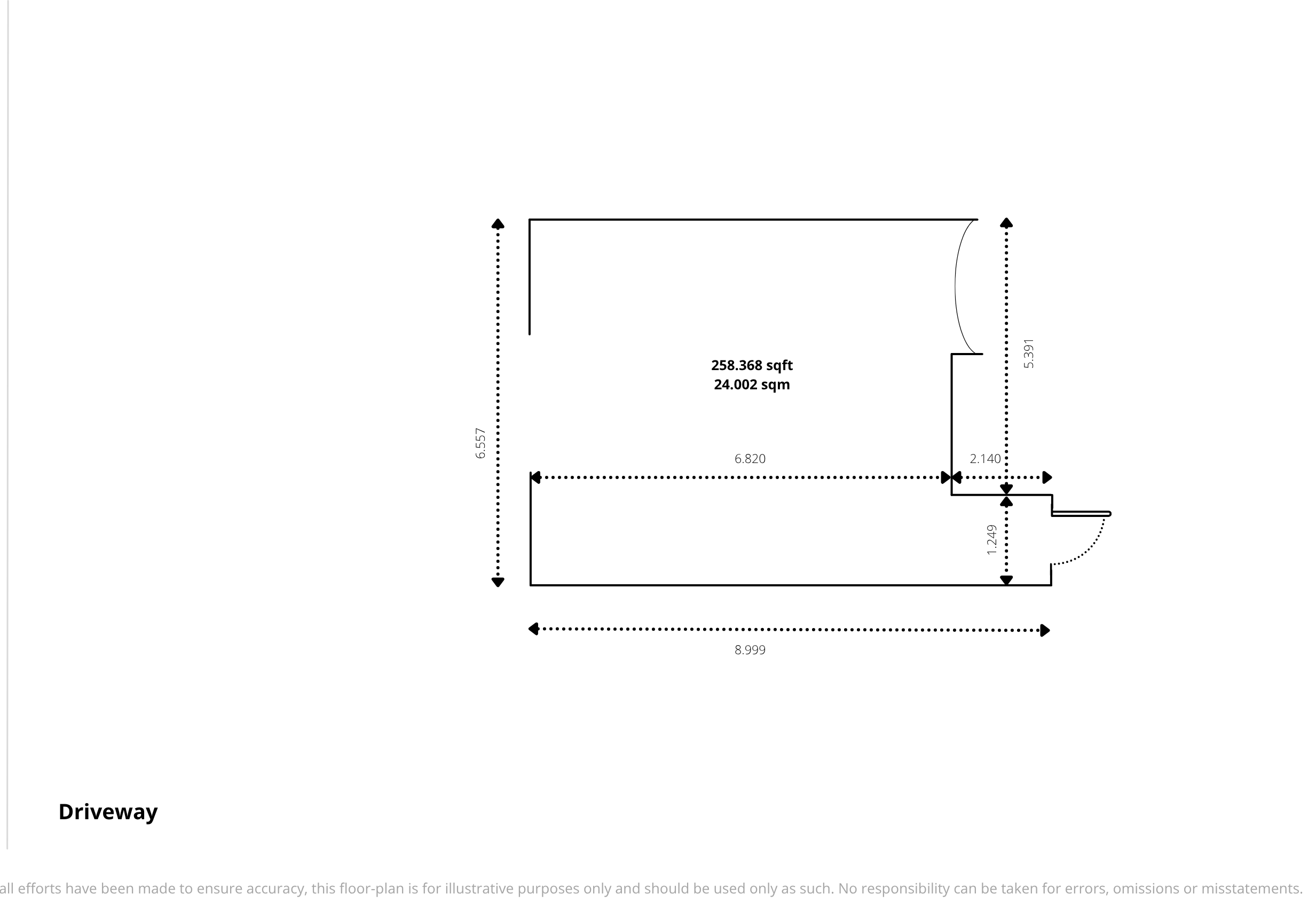
  • Possible Off-Street Parking at the Rear of the Property
  • Gas Central Heating
  • Double Glazing
  • Street Parking

Property media

Property details

We are Very proud to market this spacious Three-Bedroom End of Terrace House in the sought-after Rayners Lane area of Harrow HA2.

Needing Refurbishment throughout, this rambling premises has huge potential, and subject to planning permission, it could be possible to Extend the Rear and Loft Space.

Double Glazing, Gas Central Heating, Street Parking, possible Off-Street Parking at the rear of the property, and within a short distance to nearby commuting facilities and a range of local amenities, this spacious home with a front and back Garden is now availabe to view.

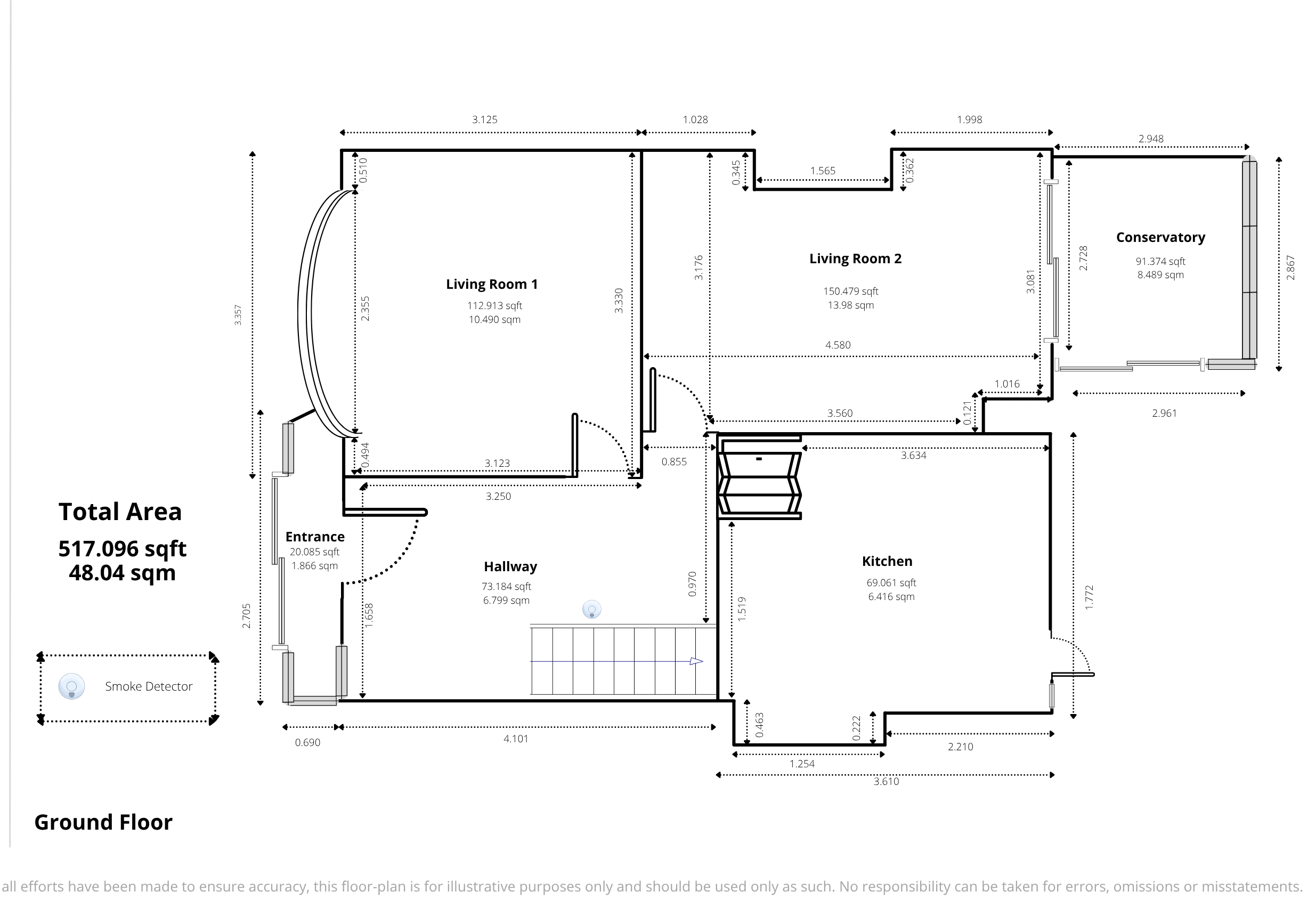
Specification (Please note, measurements to follow)
Front garden - Lawn, Crazy Paving, Mature Shrubs.

Hallway - Carpeted, understairs cupboard, small enclosed storm porch to the hallway.

Front Reception - Carpeted, radiators.

Rear Room - Carpeted, Gas Fire, Radiator, Double Doors to the Conservatory.

Kitchen - Door to the Garden, Vinyl Floor.

Bedroom - Carpeted, Radiator, Built-in Wardrobe.

Bedroom - Carpeted, Radiator.

Bedroom - Carpeted, Radiator.

Bathroom - Three Piece Suite, Radiator, Electric Shower, Laminate Floor.

Garden - Lawn, Mature Stacked Borders, Patio Area, Shed, Rear Parking space, Garage.

Conservatory - Tiled floor, Side Door to Garden.

Council Tax Band - D (2025-2026 Charge of £2,395.86)

Contact DM&Co to arrange a viewing.

Rent, Let, Buy and Sell through DM & Co.

Working in the area for over 26 years, DM & Co differ from other Lettings and Estate Agents on so many levels, not least due to the Bespoke Service we provide each time!

For Vendor Fee information, please see our website under the "Selling" heading / Valuation & Fee section.

Arrange a viewing

Contact us on 0208 864 5775 or click the button below to arrange a viewing.
Arrange Viewing

Want to know how much your property is worth?

Whether your looking to move soon, or just curious to know the current value of your property, our instant valuation tool is a great place to start.
Get a free valuation

Explore the local area with our handy guides

Looking to buy a home in Sudbury Hill or the Harrow area? Check out our local area guides to see local schools and amenities.
View guides

"*" indicates required fields

This field is for validation purposes and should be left unchanged.

Contact us

Enter your details below to discuss your mortgage and property needs
Name*
Please confirm:*
Please note: This calculator provides estimates only and should not be relied upon for financial decisions.
Loan amounts and criteria will differ across lenders. Your home may be repossessed if you do not keep up repayments on a mortgage.
Please speak to your financial advisor before making any mortgage decisions.
Please note: This calculator provides estimates only and should not be relied upon for financial decisions. The calculation is based on the residential stamp duty rules for a freehold property as described in September 2022.
For a more accurate and current calculation for your specific situation please see the Stamp Duty Land Tax website.
You can also calculate stamp duty using the HMRC calculator.

Property location

Arrange a viewing of 

Drake Road, Rayners Lane, HA2

"*" indicates required fields

This field is for validation purposes and should be left unchanged.
This field is hidden when viewing the form
Please confirm*
From opening in 2000, DM & Co in Sudbury Hill, Harrow operate on simple, straight forward and open friendly but professional basis only.

Office address

170 Greenford Road,
Sudbury Hill,
Harrow, Middx,
United Kingdom,
HA1 3QX

Tel: 0208 864 5775
DM&Co © 2025 All Rights Reserved
Design + Build ExpertWeb
envelopesmartphonecrosschevron-down
linkedin facebook pinterest youtube rss twitter instagram facebook-blank rss-blank linkedin-blank pinterest youtube twitter instagram